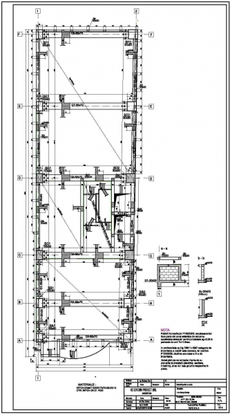
Imobile birouri_str. Dr.Felix 55-57