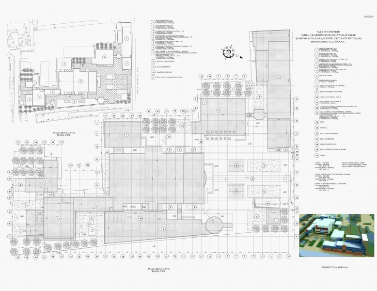
Centrul Cultural Transilvania